Description
Manufacturing Quality
With over 11 years of experience, Eco Hearth operates as a European manufacturer focused on craftsmanship, precision, and full in-house production. We monitor every stage, from selecting raw timber to final assembly, ensuring consistent durability, refined finishing, and long-lasting performance in every sauna.
What is Thermally Modified Wood
For our saunas, we use thermally modified wood, timber that undergoes heat treatment without chemicals. The process involves slowly “baking” the wood in a kiln at 215°C for 5 days. The result:
- Increased strength and stability of the wood
- Enhanced resistance to decay and moisture
- Reduced tendency to warp or shrink
- Beautiful natural appearance preserved for decades
This ensures your sauna will look as good in 30 years as it does on the first day.
Heating Options
You can choose between a wood-burning heater, natural steam, chimney included and stones provided, or an electric heater, fast and even heating, Wi-Fi control for scheduling and temperature adjustment, also supplied with stones, whichever suits your lifestyle best.
Panoramic Window
Each sauna features a large double-glazed panoramic window that fills the interior with natural light, opens the view to your garden, and makes the space feel more open, relaxing, and connected to nature. The insulated glazing keeps the heat inside while giving the sauna its modern, airy look.
Interior Lighting
Soft lighting adds a warm, relaxing atmosphere inside the sauna and highlights the beauty of the natural wood without overpowering it.
Custom Options
As manufacturers we can expand, adjust and customize your sauna in any direction, adding terraces, covered canopies, shower areas, changing rooms, bar zones, BBQ setups, relaxation spaces or storage modules, creating the perfect layout for your property and the way you live. For a complete wellness experience you can also pair your sauna with one of our premium ice baths for contrast therapy and deeper recovery.
What’s Included
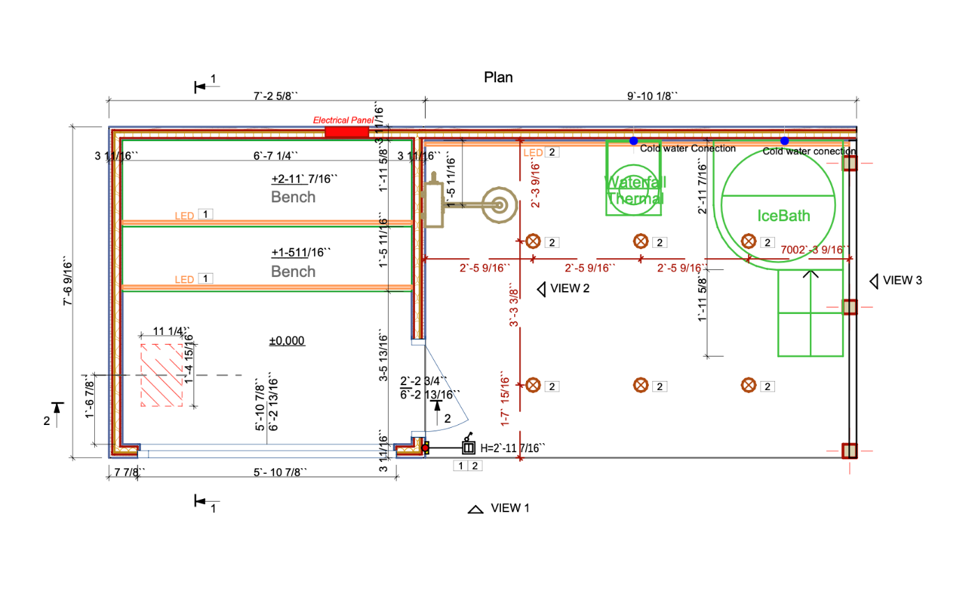
- Sauna 7’3” × 7’7”
- Patio 7’7” × 9’10”
- Chosen heater, electric or wood-burning with chimney, stones included
Thermo-hygrometer
- Personalised gingerbread cookie
- Home delivery
- Flat-pack for self-assembly or a fully assembled unit
Contact Us
We’re here to create a sauna that reflects you: your group size, your space, your taste. Visit our sauna collection and let’s design a beautiful, lasting wellness retreat together.
Interested in the science behind it? Read more on the benefits of ice bath therapy and sauna therapy in our blog.


















